accueil 
page demi-siècle
 

L'historique du domaine des Grandes Terres en images   (maj:28/03/2026)

 
  Table des matières :    
  1 - avant
2 - pendant 
3 - après 
4 - par square : hier et aujourd'hui
   

I - Avant :

IGN_07/08/1923

IGN_vers 1930

IGN_/07/1933

IGN_29/06/1949

IGN_04/04/1957


 

plan cadastral

vue aérienne juin 1949(Copyright_IGN)

les Grandes Terres  était une
prairie

au centre de laquelle se dressait une maison bourgeoise, qu'on appelait le "Manoir"

le Manoir


 

 Marcel Lods

l'architecte des Grandes Terres

 

 

 

 

 

altimétrie Versailles-Marly 

 

   

 Marcel Lods

l'architecte des Grandes Terres

 1er projet

 2ème projet

maquette appart '5 pièces'

 


 

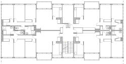
plan appartement 4 pièces

 

plan appartement rdc NS

 

 

haut de page

II - Pendant :

IGN_04/04/1957

IGN_07/03/1960

IGN_13/05/1961

IGN_17/09/1963


 


 

vue aérienne avril 1957 (Copyright_IGN)

on aperçoit le "Manoir" au loin

vers 1960 

 

 vers 1960
 

vers 1960

les "baraques" du chantier

       

haut de page

III - Après :

IGN_17/09/1963

IGN_01/03/1965

IGN_11/04/1968

IGN_1978

IGN_11/07/1987

 IGN_16/06/2003

les Grandes Terres vers 1961-1962

les Grandes Terres vers 1962

les Grandes Terres vers 1962

vue aérienne sept. 1963 (Copyright_IGN)

les Grandes Terres vers 1961-1962

les Grandes Terres vers 1962

les Grandes Terres vers 1962

les Grandes Terres vers 1962

les Grandes Terres vers 1962

les Grandes Terres vers 1963

les Grandes Terres vers 1963?

les Grandes Terres vers 1962-1963

les Grandes Terres vers 1967

les Grandes Terres vers 1970

vue aérienne août 1978 (Copyright_IGN)

les Grandes Terres  1989 (vue ouest)_Le Guillou

les Grandes Terres  1989 (vue sud-ouest)_Le Guillou

les Grandes Terres  1989 (vue sud-ouest)_Le Guillou

les Grandes Terres  1989 (vue sud-sud-ouest)_Le Guillou

les Grandes Terres  1989 (vue sud)_Le Guillou

les Grandes Terres  1989 (vue sud-sud-est)_Le Guillou

les Grandes Terres  1989 (vue sud-sud-est)_Le Guillou

les Grandes Terres vers 1992

les Grandes Terres  15/03/2007

 

 

haut de page

IV - par square et le centre commercial : (cliquez sur votre square...)