demi-siècle
historique en images 
 

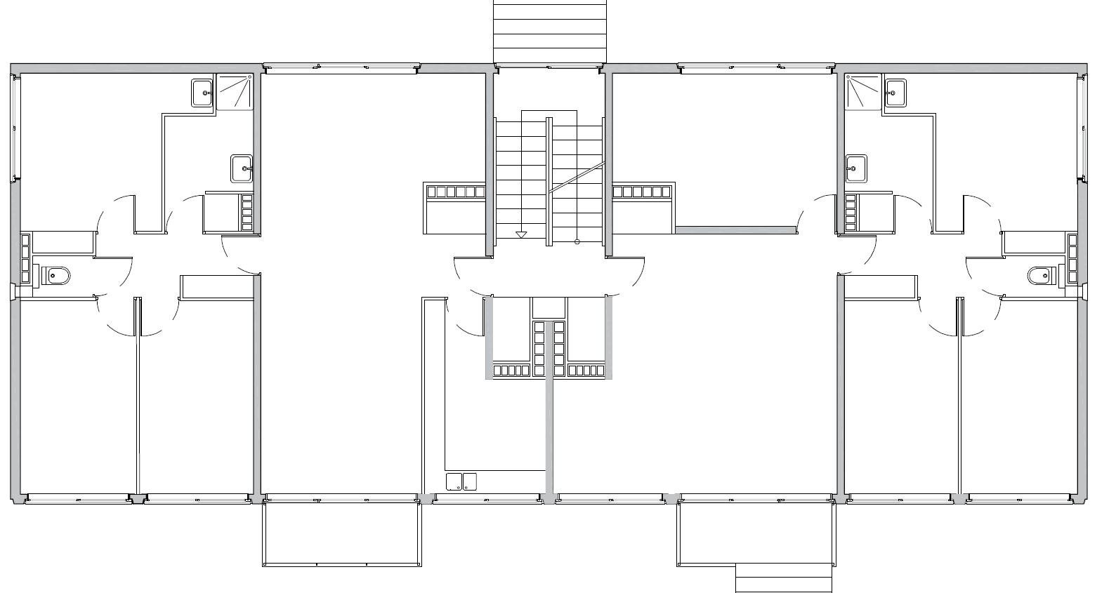
plan de l'appartement 'rdc Nord-Sud'