demi-siècle
historique en images 
 

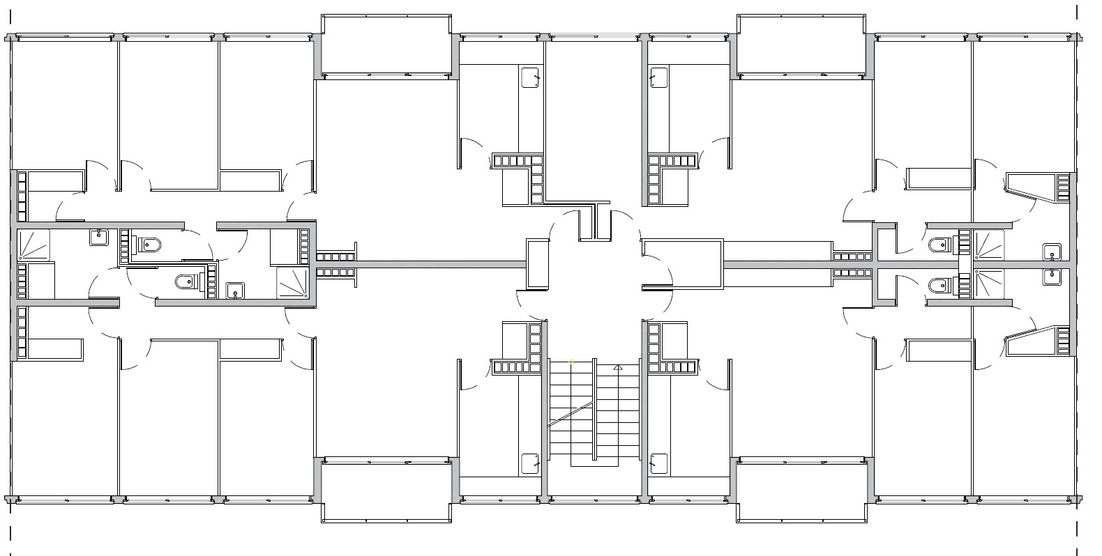
plan de l'appartement '4 pièces'